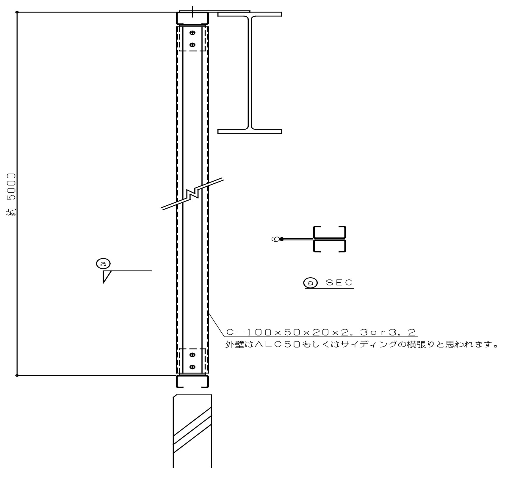
縦胴縁のある現場で2C部分をみたら中間留めがされていませんでした。平屋部分と2階部分が少しあるカーディーラーの店舗でした。
天井が高く約5m位あったと思うのですが,土台部分とR階梁部分で取り合いしてあるだけでした。そこで,一般的にどの程度のピッチで溶接もしくはボルト留めをすればよいのか教えて下さい。

一般にリップ溝形鋼の2本を組み合わせてひとつの部材とすると断面が対称となるので効率のよい断面性能を発揮させることが可能です。ただし,このような場合には2本のリップ溝形鋼を適正につづり合わせて接合しておく必要があります。
質問の縦胴縁のディテールではつづり合わせる接合が行われていないので外力に対して単体のリップ溝形鋼の横座屈を考慮した許容曲げ耐力の2倍の曲げ耐力しか期待できません。縦胴縁であるので外壁がどのように取り付くのか,縦胴縁にどの程度の外力が作用するのか設計時に構造検討が行われているはずなのでリップ溝形鋼をつづり合わせ部材と想定しているのか,リップ溝形鋼を単体として想定しているのか,また,つづり合わせる部材を想定している場合は両者の溶接やドリルねじ等による接合について監理者に確認してください。
2本のリップ溝形鋼がそれぞれ単体として設計されているのであれば,つづり合わせは不要です。
2本の軽溝形鋼またはリップ溝形鋼をドリルねじまたは溶接を用いてつづり合わせて梁とする場合,ボルト,ドリルねじまたは溶接のピッチ P1 について下記の式が文献1) および文献2) に示されています。
Supporting Association for Building Steel Structural Technology All Rights Reserved.